|
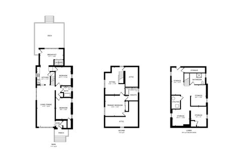
Same owners since 1986, This English tudor Style home has a large open living room dining room combination , gally style kitchen and added eating area with laundry on main level. Two nice sized bedrooms and a full bath round out the first floor, The second level is a complete primary suite with large bedroom full bath and addition seating area . The basement used to be a two bedroom apartment with a full bath , The basement is only framed out , but can be put back together as a unit or opened up for recreation space. FLOOD CONTROL check valve installed . newer windows. 35 year roof is 15 years old, OVER SIZED LOT 35x180 . You can do nothing but add value to this home. Homes surrounding this property range from 700-900k. don't miss this opportunity in the heart of NORWOOD PARK.
Property Type(s):
Single Family
| Last Updated | 11/28/2025 | Year Built | 1938 |
|---|---|---|---|
| Community | CHI - Norwood Park | Garage Spaces | 2.0 |
| County | Cook |
Additional Details
| AIR | Central Air |
|---|---|
| AIR CONDITIONING | Yes |
| AREA | CHI - Norwood Park |
| BASEMENT | Bath/Stubbed, Exterior Entry, Full, Partially Finished, Yes |
| CONSTRUCTION | Brick |
| GARAGE | Yes |
| HEAT | Natural Gas |
| LOT | 0 |
| LOT DIMENSIONS | 37x182x35x155 |
| PARKING | Garage Door Opener, Detached, Off Street, Garage |
| SEWER | Public Sewer |
| TAXES | 6712 |
Location
Contact us about this Property
| / | |
| We respect your online privacy and will never spam you. By submitting this form with your telephone number you are consenting for Mary White to contact you even if your name is on a Federal or State "Do not call List". | |
Listed with Baird & Warner
The data relating to real estate for sale on this web site comes in part from the Broker ReciprocitySM Program of MRED. All real estate listings are marked with the Broker ReciprocitySM logo or the MRED Broker ReciprocitySM thumbnail logo (a little black house) and detailed information about them includes the name of the listing brokers.
The broker providing these data believes them to be correct, but advises interested parties to confirm them before relying on them in a purchase decision.
Copyright 2025 MRED. All rights reserved.

The broker providing these data believes them to be correct, but advises interested parties to confirm them before relying on them in a purchase decision.
Copyright 2025 MRED. All rights reserved.
This IDX solution is (c) Diverse Solutions 2025.